logo nieuwsbrief kopie
facebook twitter youtube instagram 

Het nieuws in beeld

Burgemeester Van Erk geeft gastcollege

Hillegom - Maandag 27 september was burgemeester Arie van Erk te gast op het Fioretti College voor een les in burgerschap. Foto's: Bert Bouwman
Burgemeester Van Erk geeft gastcollege
Hillegom-Agenda-bovenbalk-agenda-kopie-1

Het laatste nieuws

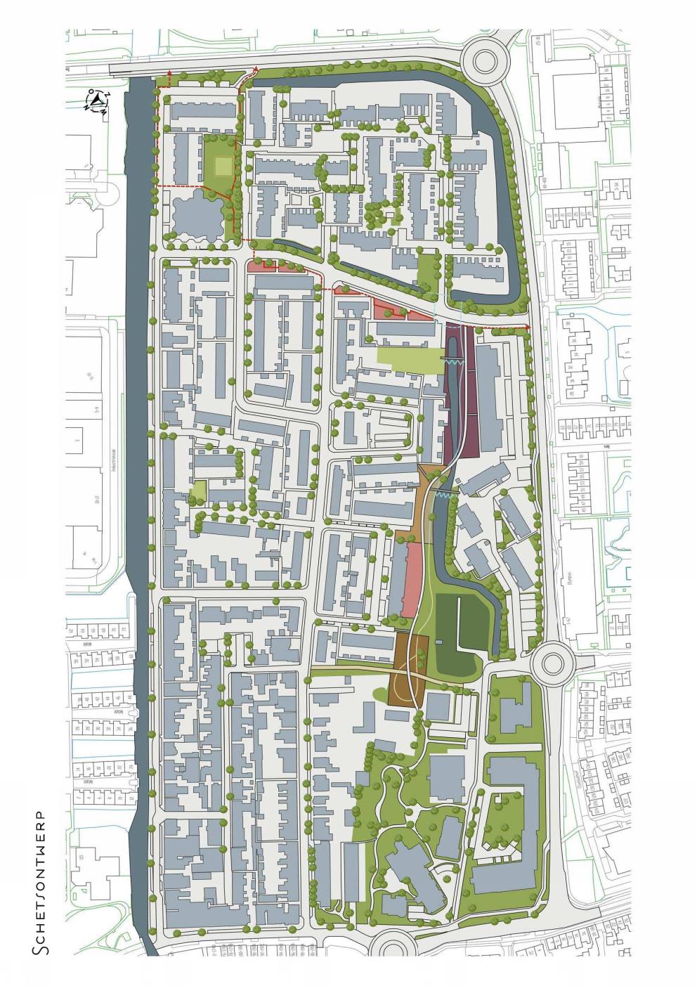
Schetsontwerp voor Park Rozendaal

Hillegom - Sinds kort is het schetsontwerp afgerond voor Park Rozendaal: een nieuwe groenstructuur in het Havenkwartier/ Brouwervaartkwartier. Hierbij worden verschillende kleinere delen openbaar groen aan elkaar verbonden, zodat je er bijvoorbeeld een ommetje kunt maken. Park Rozendaal ligt tussen het Jozefpark en de Sportlaan/ Avenbeeck. Het schetsontwerp is tot stand gekomen via een intensief participatieproces met inwoners, omwonenden, verschillende …
Schetsontwerp voor Park Rozendaal

MuBo start met Wizard of Oz

MuBo start met Wizard of Oz
Hillegom - Stichting MuBo zoekt “nieuw” talent m/v Stichting MuBo (Muziektheater Duin- en Bollenstreek) zoekt “nieuw” talent voor de grote nieuwe productie “The Wizard of Oz”. MuBo, al meer dan 10 jaar actief en inmiddels een begrip in de Duin- en Bollenstreek, heeft al 15 grotere en kleinere producties gemaakt, waaronder een aantal hitproducties uit de musicalwereld zoals My fair …

Week tegen eenzaamheid: Financieel misbruik

Hillegom - Van 30 september tot 7 oktober is het de Week tegen Eenzaamheid. Rabobank is partner van de Week tegen Eenzaamheid en vraagt aandacht voor een belangrijk maar onderbelicht probleem bij eenzaamheid: financieel misbruik door bekenden. “Hoe kleiner het sociaal netwerk, hoe makkelijker de dader ruimte voelt onrechtmatig te handelen.” Aan financieel misbruik kan vaak iets worden gedaan. Wie …
Week tegen eenzaamheid: Financieel misbruik

Franciscusdag 'Wijs met Water'

Franciscusdag 'Wijs met Water'
Na twee jaar afwezigheid is Franciscusdag is op vrijdag 8 oktober weer terug op de agenda met het overkoepelend thema 'Wijs met water'. Wijs met water is een initiatief van de Rotaryclubs in Duin- en Bollenstreek, waarin Rotaryclub Lisse Bollenstreek samenwerkt met leerlingen van beide Fioretti vestigingen. Voor dit initiatief wordt een sponsorwerving opgezet met een tweeledig doel. Enerzijds om …

Adamas inloophuis in nieuw jasje

maandag 20 september werd de nieuwe look en feel van Adamas feestelijk gevierd door burgemeester van Hillegom, Arie van Erk, die de strik van de vrolijk ingepakte voordeur losmaakte. Afgelopen maandag stonden vele mensen te kijken hoe burgemeester van Hillegom, Arie van Erk, de strik losmaakte van de ingepakte voordeur in de herkenbare Adamas kleuren. De voordeur was als cadeau …
Adamas inloophuis in nieuw jasje

Ik doe mee in Hillegom

Ik doe mee in Hillegom
Hillegom - Ik doe mee. Onder die naam zijn er in de regio Hillegom momenteel twee projecten actief. Een voor psychisch kwetsbaren, de ander tegen eenzaamheid. Het doel? Meedoen en elkaar ontmoeten. Teamleider Jessica Frans van Hillegom in Beweging/SportSupport licht beide projecten toe. Ik doe mee in de Bollenstreek Ik doe mee in de Bollenstreek is een samenwerking tussen SportSupport, …

Coördinator Fietsmaatjes stopt

Hillegom - Fietsmaatjes Hillegom Lisse zoekt een nieuwe coördinator communicatie nu Christa Portegies er na drie jaar mee wil stoppen. “Kijk wat je leuk vindt, je kunt je talenten er verder in ontwikkelen,” zegt ze over die rol, die zij als vanzelf invulling gaf bij de start van de stichting drie jaar geleden. “De complimenten, het plezier en de groei …
Coördinator Fietsmaatjes stopt

Potjes Geluk tijdens Week van de Ontmoeting

Potjes Geluk tijdens Week van de Ontmoeting
Hillegom - Tijdens de jaarlijkse landelijke Week tegen Eenzaamheid van 30 september tot en met 7 oktober, ook wel de Week van de Ontmoeting genoemd, bezorgt WelzijnsKompas Potjes Geluk. Ben of ken je iemand die een klein geluksmomentje goed kan gebruiken? Buurtwerker Carlijn French stapt tijdens de Week van de Ontmoeting in de tuktuk om inwoners van Hillegom en Lisse …

Noord- en Zuid-Holland bundelen krachten met Circulair West

Hillegom - De provincies Noord-Holland en Zuid-Holland verbinden zich de komende drie jaar als vriend aan stichting Circulair West. Circulair West is opgericht door een groep ondernemers met een gezamenlijk doel: het versnellen van de transitie naar een circulaire economie. Door de nieuwe samenwerking kunnen de provincies en de aangesloten ondernemers kennis en expertise over circulair ondernemen delen, de netwerken …
Noord- en Zuid-Holland bundelen krachten met Circulair West
Hillegom-Agenda-bovenbalk-agenda-kopie-1
facebook twitter youtube instagram